Продажа дома
Пермский край, Большая Мось д, Большая Мось
- 160 м²
- Площадь
- 130.00 м²
- Жилая площадь
- 2
- Этажность
- 8 сот
- Площадь участка
16 500 000 ₽
102 933 ₽ за м²
ID объявления 11133063
Поделиться
Добавить в избранное
Уникальное предложение всего в 30 минутах от центра г. Перми в дер Большая Мось!
В доме выполнена предчистовая белая отделка! Звоните! Записывайтесь на просмотр!
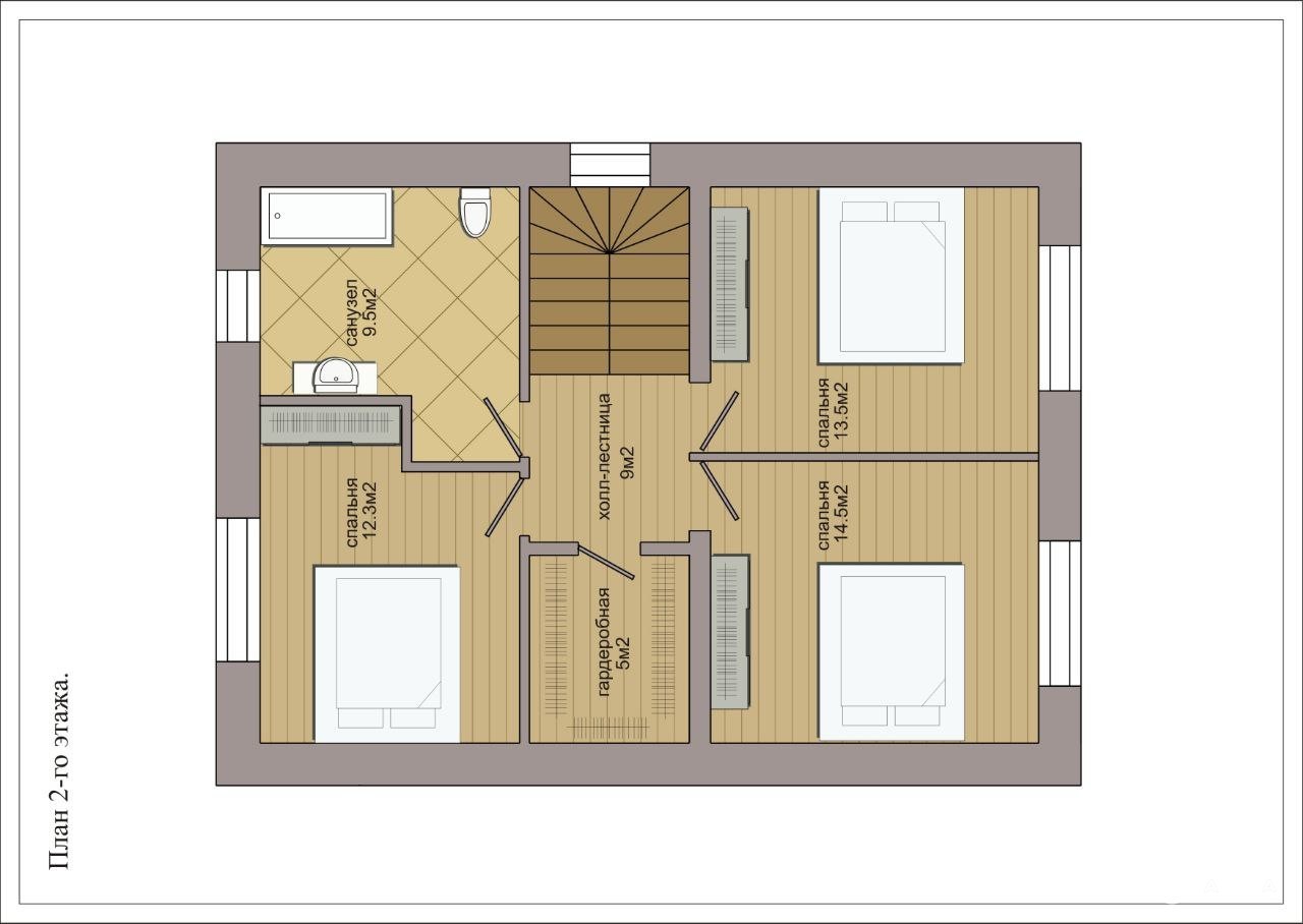
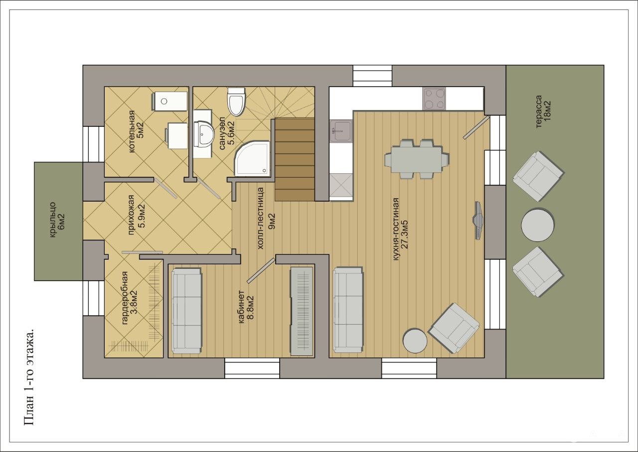
На первом этаже располагается просторная гостиная-кухня, санузел, спальня, гардеробная, котельная, на втором 3 уютные спальни для отдыха, просторная гардеробная и санузел.
УЧАСТОК
- 7, 5 соток:
- Удобный подъезд к участку, в шаговой доступности магазины, а также строящийся детский сад;
- Выполнена вертикальная планировка участка с устройством надежных подпорных стен;
- широкий въезд на участок, возможно место под парковку 3 автомобилей.
ДОМ:
- Фундамент дома - ленточный, выполненный по буронабивным сваям диаметром 350 мм, что обеспечивает долговечность и устойчивость;
- Стены из газобетона марки М500 толщиной 400 мм, облицованные качественным кирпичом;
- Лестница из монолитного железобетона, обеспечивающая прочность и безопасность;
- Сборные железобетонные перекрытия, что гарантирует надежность конструкции;
- Наружное декоративное освещение фасада, создающее уютную атмосферу;
- Цоколь утеплен пеноплэксом с отделкой, входная группа оформлена керамогранитом и выполнена отмостка;
- Просторная терраса площадью 23 кв.м идеальное место для отдыха на свежем воздухе;
- Котельная отделана керамической плиткой, предусмотрена лапомойка для удобства;
- Электроразводка по дому выполнена с установкой подразетников (без концевых приборов);
- В котельной установлен водонагреватель и электрический котел;
- Оконные конструкции с ламинацией и качественной фурнитурой производитель фурнитуры Siegenia;
- Предусмотрены отверстия для приточной вентиляции;
- Теплые полы на 1 и 2 этажах для вашего комфорта;
- в котельной выполнена отделка керамической плиткой;
- выполнена локальная сеть канализации;
- Разводка водоснабжения с двумя выходами для установки уличных кранов;
- Выполнена качественная входная группа с облицовкой керамогранитом.;
- Отделка - предчистовая.
КОММУНИКАЦИИ:
- Электричество - 15 кВт
- Вентиляция - вентиляционные каналы из кирпича (6 шт.), предусмотрен выход газохода из котельной;
- Вода - выполнено устройство скважины 37 метров с обустройством;
- Отопление - на данный момент электрическое,
- ГАЗ - проходит по краю участка;
- Канализация - 4 кольца.
ДОКУМЕНТЫ:
Дом зарегистрирован на физ лицо в 2024 году, походит под сельскую ипотеку. Площадь дома составляет 131 м2, площадь открытой террасы 23 м2, крыльцо 6м2
Дата обновления: 2 апреля 2025