Продажа дома
Пермский край, Култаево с., Космонавтов ул.
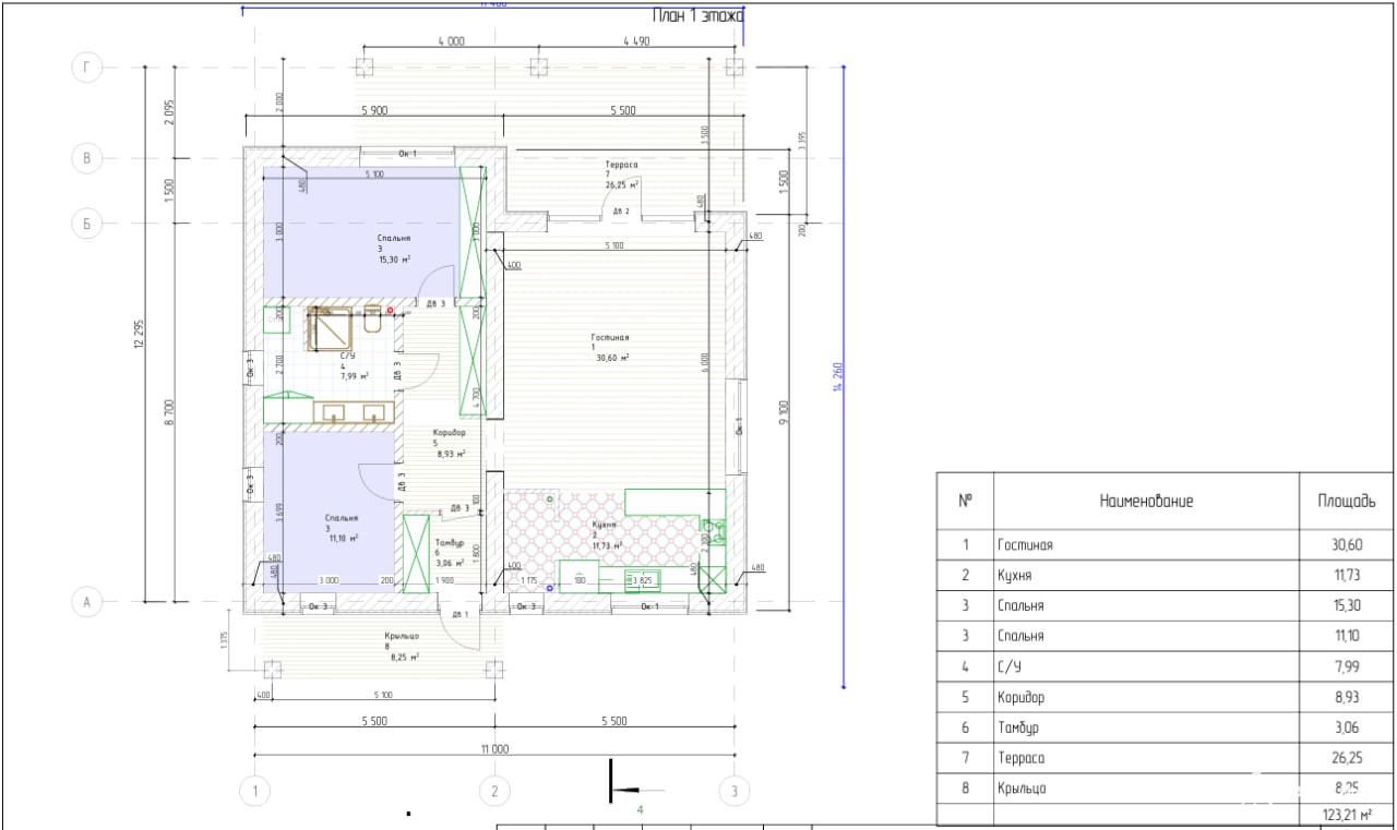
- 123 м²
- Площадь
- 57 м²
- Жилая площадь
- 12 м²
- Площадь кухни
- 10 сот
- Площадь участка
- 1/1
- Этаж
7 200 000 ₽
58 537 ₽ за м²
ID объявления 12246959
Поделиться
Добавить в избранное
Арт. 126285453 <br>Хотите построить современный, тёплый и долговечный дом для своей семьи? <br>Теперь вы легко можете это сделать на вашем участке. <br> <br> Что вы получаете <br>Этот стильный одноэтажный дом — продуманный, надёжный, готовый оберегать и дарить уют вашей семье долгие годы: <br><ul><li data-list="bullet"><span class="ql-ui" contenteditable="false"></span>Площадь: 123 кв.м. — идеальная планировка для семьи, 2 спальни + просторная кухня-гостиная 30 кв.м.</li><li data-list="bullet"><span class="ql-ui" contenteditable="false"></span>Фундамент: утеплённая монолитная плита 300 мм — долговечный, стабильный, подходит под любые грунты.</li><li data-list="bullet"><span class="ql-ui" contenteditable="false"></span> Стены: газоблок (твинблок) 400 мм + 50 мм утепления — тепло, тишина и низкие расходы на отопление.</li><li data-list="bullet"><span class="ql-ui" contenteditable="false"></span>Кровля: железобетонное перекрытие + 300 мм утеплителя и мембрана “Технониколь” — защита на десятилетия.</li><li data-list="bullet"><span class="ql-ui" contenteditable="false"></span>Витражные окна: максимальное естественное освещение будет дарить вам дополнительное тепло и уют, а современный дизайн, позволят выделяться вашему дому в округе.</li></ul> <br> <br> Коммуникации и отделка наружных стен <br> <br>В дом подключается: <br><ul><li data-list="bullet"><span class="ql-ui" contenteditable="false"></span>скважина с вводом в дом</li><li data-list="bullet"><span class="ql-ui" contenteditable="false"></span>канализация — станция биологической очистки «Малахит 6+»</li><li data-list="bullet"><span class="ql-ui" contenteditable="false"></span>подведение электричества</li><li data-list="bullet"><span class="ql-ui" contenteditable="false"></span>внешняя отделка — долговечная и эстетичная штукатурка «Короед»</li></ul> <br> <br> Строят профессионалы <br>Профессиональная строительная компания с 7-летним опытом, за это время построили более 300 домов в Перми и Пермском крае. <br> <br>Наши преимущества:<ol><li data-list="ordered"><span class="ql-ui" contenteditable="false"></span> 20 лет гарантии по договору</li><li data-list="ordered"><span class="ql-ui" contenteditable="false"></span> Закупка материалов напрямую от производителей — экономия на каждом этапе</li><li data-list="ordered"><span class="ql-ui" contenteditable="false"></span> Большой выбор проектов или адаптация под вас</li><li data-list="ordered"><span class="ql-ui" contenteditable="false"></span> Сжатые сроки строительства и строгий контроль качества</li><li data-list="ordered"><span class="ql-ui" contenteditable="false"></span> Гибкие варианты финансирования</li><li data-list="ordered"><span class="ql-ui" contenteditable="false"></span> Помощь в одобрении ипотеки (в том числе сельской и строительной)</li></ol> <br> <br>Если хотите посмотреть уже готовый дом и обсудить строительство на вашем участке — напишите или позвоните мне прямо сейчас, всё покажу и расскажу.
Дата обновления: 8 января 2026