Продажа коттеджа
Пермский край, Протасы п., Лесная ул.
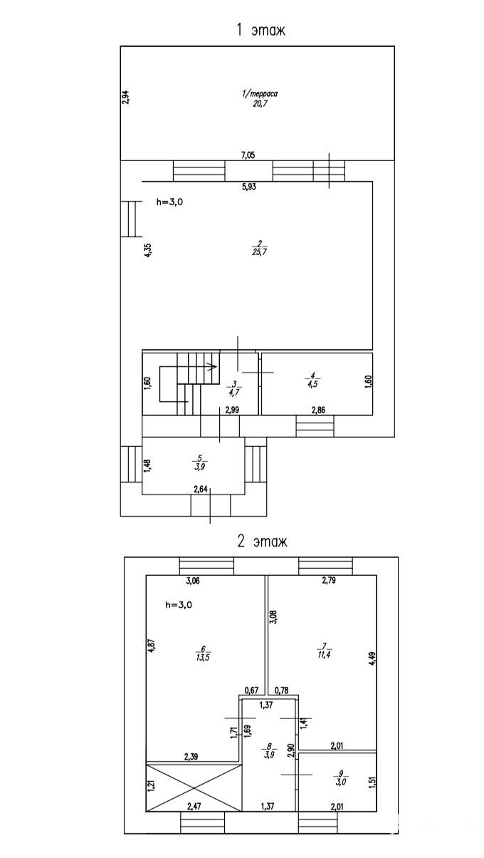
- 95 м²
- Площадь
- 36.9 м²
- Жилая площадь
- 25.7 м²
- Площадь кухни
- 6 сот
- Площадь участка
- 1/2
- Этаж
5 850 000 ₽
61 579 ₽ за м²
ID объявления 12415916
Поделиться
Добавить в избранное
Арт. 128733696 <br>Свой Дом – мечта многих! <br>Дом требует Вашего внимательного осмотра, - про фундамент, отмостку, толщину стен, конструкцию, крышу, особенности коммуникации расскажу при осмотре. <br>О главном: дом добротный, сухой, теплый и очень светлый. Построен из кирпича, облицован тоже кирпичом. <br>Продуманная и функциональная планировка – две раздельные спальни на верху и большая гостиная, которую легко разделить и получить еще 1 спальню на 1 этаже. При этом большая прихожая, где поместится гардеробная. <br>Два отдельных санузла - на 1 и 2 этажах. Один из санузлов можно сделать гардеробной или еще как-то практично применить. Не как санузел. <br>Для Вашего удобства из гостиной сделан выход на терасу и участок, где можно ставить баню и/или бассейн. <br>Продается дом в предчистовой отделке, а это наиболее выгодное решение – сам дом полностью готов, а Вы сможете весь интерьер заказать или самостоятельно сделать в своем вкусе, как Вы захотите, из чего Вы считаете нужным. <br>Интернет и цифровое телевидение подключат по первому требованию, своя скважина на воду, электрическое отопление, канализация септик с переливом. <br>Земельный участок выделен на местности, но не огорожен. Большой плюс - участок с небольшим уклоном, поэтому вся вода с него уходит очень быстро. Он квадратной удобной формы. Вы сразу сможете высадить любимые Вами кустарники, хвойные и плодовые деревья, цветы и другие посадки, разбить его на зоны. <br>На участке достаточно места и для второй машины и для детской площадки и для бани и для зоны релакса – все что вы захотите. <br>Многие соседи уже построились и живут постоянно, временных «дачников» в соседях почти нет. <br>Поселок обустраивается: совсем рядом -в Косотурихе новый детский сад, а школы в Култаево и Петровке все знающие неперестают расхваливать. <br>До первого «кольца» в Перми по новой скоростной трассе 15 минут на машине. <br>Дом и участок зарегистрирован, адрес и все документы подготовлены к сделке, подходят под семейную и обычную ипотеку любого банка и любого сертификата. <br>Звоните! Записывайтесь на осмотр и покупайте. <br>При осмотре подробно расскажу о стройке и, если есть желание, посмотрим видео архив о строительстве. <br>Условия сделки обсудим на встрече.
Дата обновления: 25 января 2026